Controversial Plans To Demolish Victorian Homes Are Rejected


Scheme would have replaced semi-detached homes in Wimbledon with flats

Plans to demolish a pair of neighbouring Victoria houses in Wimbledon to replace them with a flats development have been rejected by Councillors.

The proposed scheme for the two semi-detached houses in Hartfield Road had received nearly 50 letters of objection, as well as a petition opposing the plan.

The application to Merton Council asked to replace the two 3-bedroom homes with a complex of six apartments.

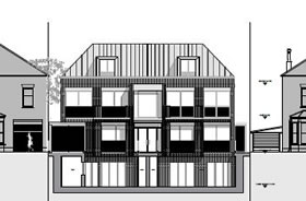
It would have involved basement homes, and in total consisted of six 1 and 2-bedroom flats. An initial plan for nine apartments was amended after the first local objections.

Outline drawings of the initial scheme are pictured above right. The existing homes are pictured below.

Protestors argued the plans were out of character with the area, and would have caused additional traffic on an already busy road.

Merton Council's planning committee voted unanimously to refuse the scheme tonight (May 25), despite the amended plans having been recommended for approval by officers.

Are you pleased with the Councillors' decision? Why not comment on our forum?

May 25, 2017

Related links
Related Links